Western College - Treatment/Consulting Wing

589 car park web.jpg

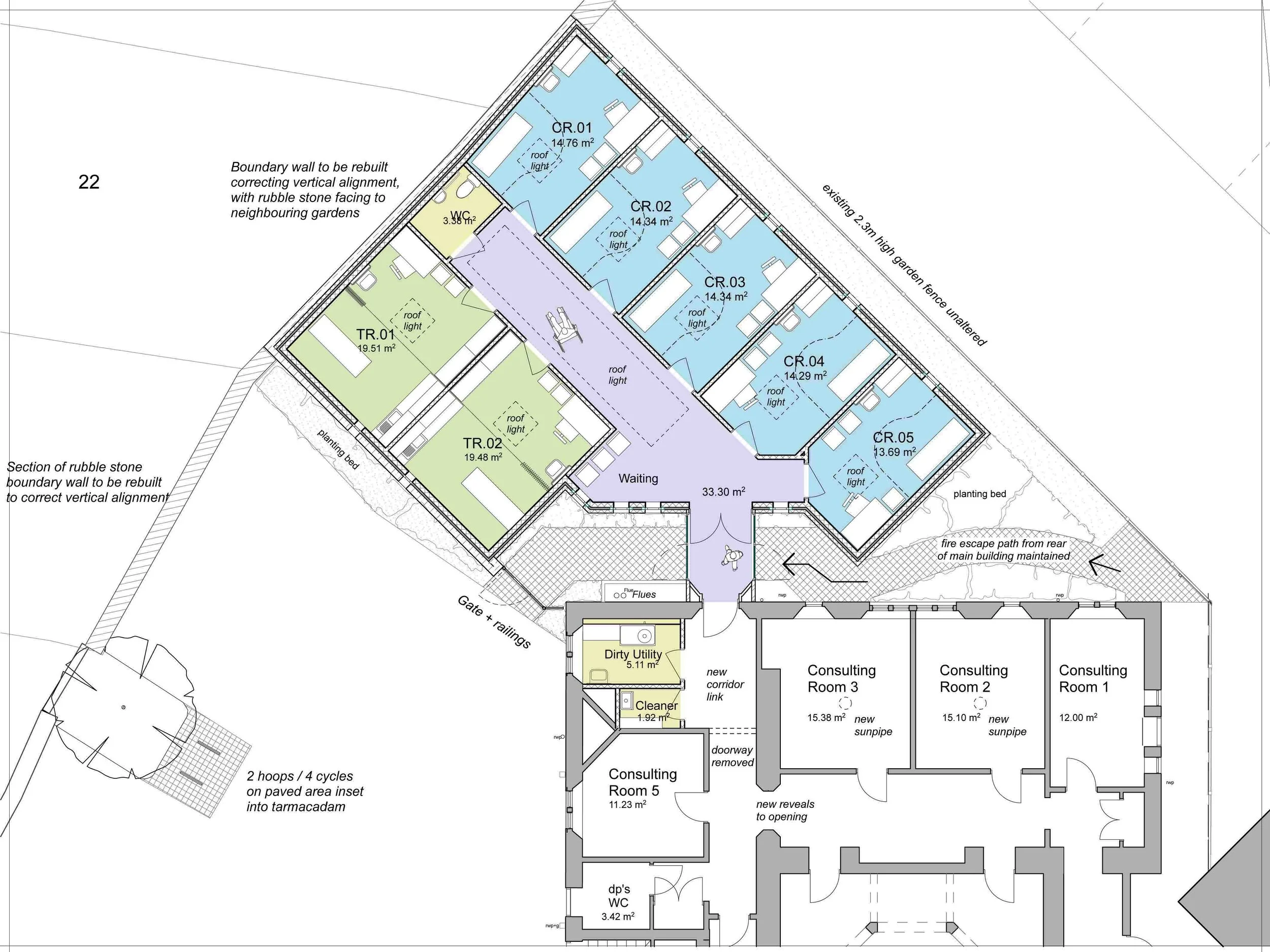
The feasibility studies concluded that upgrading the original building for more intensive clinical treatment uses risked losing or damaging significant elements of the historic fabric, and an extension at the rear of the site offered the best opportunity to create purpose‐built treatment facilities and provide much‐needed additional clinical space.

589 sk-30 Proposed Exten web.jpg

The new extension was proposed at the rear of the surgery car park, connecting to the existing Consulting Room suite via a glazed link through an extended window opening that minimised the impact on the original building fabric.

Minor internal adjustments were included to satisfy the requirements for additional ‘utility’ facilities.

589 sk-25 View from Carpark web.jpg

The building form and materials appear as a structure within a walled garden, minimising the visual impact upon the Grade II* listed building and it’s setting within the Conservation Area.

Planning approval and Listed Building consent were obtained for the proposed extension, but construction was postponed due to a national review of NHS capital funding.

back to heritage